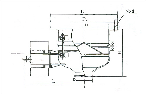
| 规格型号 | 振动料斗内径D | 相配料仓直径(m) | 参考流量(t/h) | 电机功率(kw) | 外型尺寸 | 安装尺寸 | 激振力(kg) | 出料口直径D | |||||
| 生料 | 水泥 | L | H | D1 | D2 | 孔数n | d | ||||||
| DZL04 | 400 | 2-4 | 4-7 | 6-13 | 0.18 | 435 | 400 | 490 | 450 | 8 | 14 | 0-150 | 150 |
| DZL06 | 600 | 3-6 | 7-13 | 8-20 | 0.25 | 565 | 420 | 710 | 665 | 8 | 16 | 0-250 | 180 |
| DZL08 | 800 | 4-8 | 15-30 | 35-50 | 0.4 | 685 | 530 | 930 | 880 | 12 | 18 | 0-500 | 200 |
| DZL10 | 1000 | 5-10 | 20-50 | 50-80 | 0.75 | 862 | 635 | 1130 | 1080 | 12 | 20 | 0-800 | 250 |
| DZL12 | 1200 | 6-12 | 30-100 | 1.10 | 1242 | 730 | 1340 | 1285 | 12 | 22 | 0-1600 | 280 | |
| DZL15 | 1500 | 7-15 | 40-120 | 1.5 | 1365 | 930 | 1660 | 1595 | 20 | 24 | 0-2000 | 300 | |
| DZL20 | 2000 | 8-20 | 60-160 | 2.2 | 1668 | 1055 | 2200 | 2120 | 24 | 24 | 0-3000 | 400 | |
联系人:李总
手 机:0533-4184371
邮 箱:sdzibojixie@163.com
公 司:山东博工机械制造有限公司
地 址:淄博市博山区李家窑